The Programming Phase

We consider this beginning phase the most important as the success of the project is dependent on how well we listen to our clients' needs and requirements. In this initial meeting, we obtain clients’ space requirements, functional adjacencies, furniture needs and aesthetic desires. In addition, we photographically record the existing space, and inventory and measure all existing furniture to be reused.

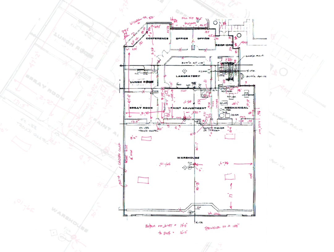
FIELD VERIFICATION

Field verification is a process that allows the designer an opportunity to validate existing drawings or to dimension an area to create new drawings.